fbpx

Fjogstad-Hus 1706

Stilfullt og utfordrende

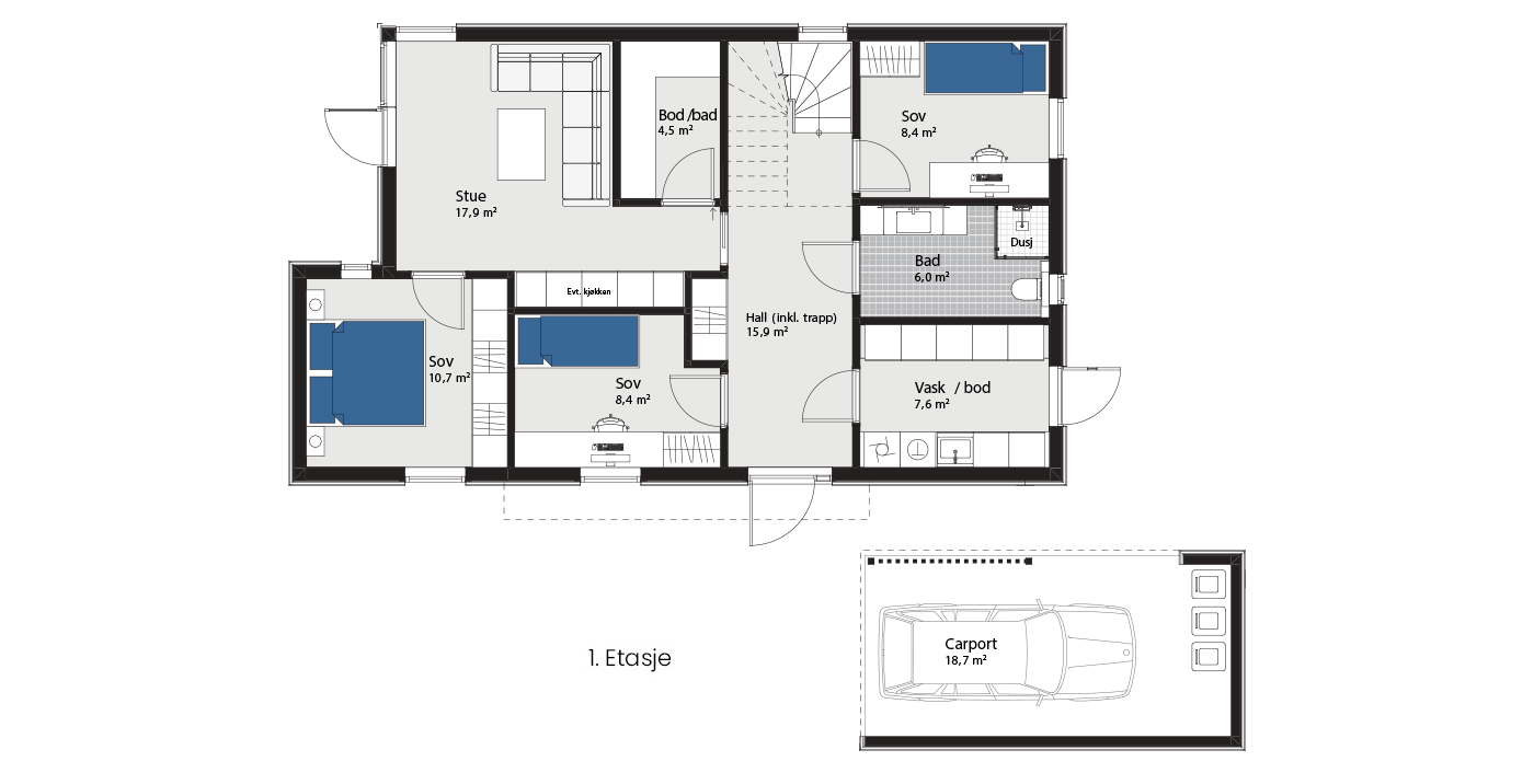
162m2

BRA

Flatt tak

TYPE

4

SOVEROM

Tegninger
Om bolig

Ønsker dere en bolig som er litt utenom det vanlige? Da kan denne være til inspirasjon. Her har arkitekten laget et lekent uttrykk og en bolig som skiller seg ut i mengden. Kjekke planløsninger, soverom med eget bad, hagestue, mediarom og ikke minst et eget atelier. Her er det mange muligheter.

Snakk med oss

    yes

    small filter icon Filter